Piła, Sródmieście
Piła, Sródmieście
Nowe, bezczynszowe mieszkanie z ogródkiem – 54,26 m²
Twój „domek jednorodzinny w pigułce” – więcej przestrzeni, niż myślisz!
Szukasz parteru z ogródkiem, bez czynszu i w wygodnej lokalizacji? Na sprzedaż 54,26 m² funkcjonalnej przestrzeni w kameralnym szeregowcu (tylko 2 mieszkania w segmencie).
Wnętrze jest przygotowane „pod Ciebie”: wykończona łazienka, dekoracyjne płytki na ścianach i ułożone podłogi. Pozostałą część przestrzeni – jak wymarzoną kuchnię, drzwi czy oświetlenie – zaaranżujesz według własnego projektu. To idealne rozwiązanie, jeśli chcesz mieć wpływ na detale, zachowując przy tym atrakcyjną cenę.
Mieszkanie z komfortem domu jednorodzinnego
Mieszkanie znajduje się w kameralnej, zupełnie nowej inwestycji o wysokim standardzie. To nowoczesny szeregowiec składający się z zaledwie 6 segmentów, z których każdy mieści tylko dwa lokale (parter i piętro), co gwarantuje mieszkańcom prywatność i spokój. Lokalizacja łączy bliskość centrum z ciszą niskiej zabudowy i sąsiedztwem ogródków działkowych.
Mieszkanie posiada własny ogródek, miejsce parkingowe tuż przed wejściem (koniec z szukaniem miejsca pod blokiem!) oraz zestaw nowoczesnych rozwiązań, które czynią je wyjątkowo oszczędnym.
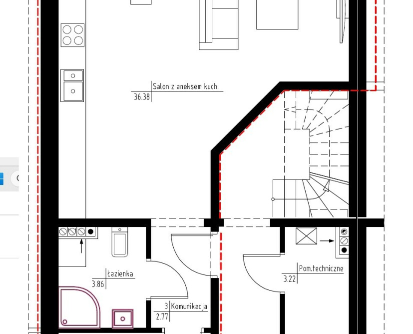
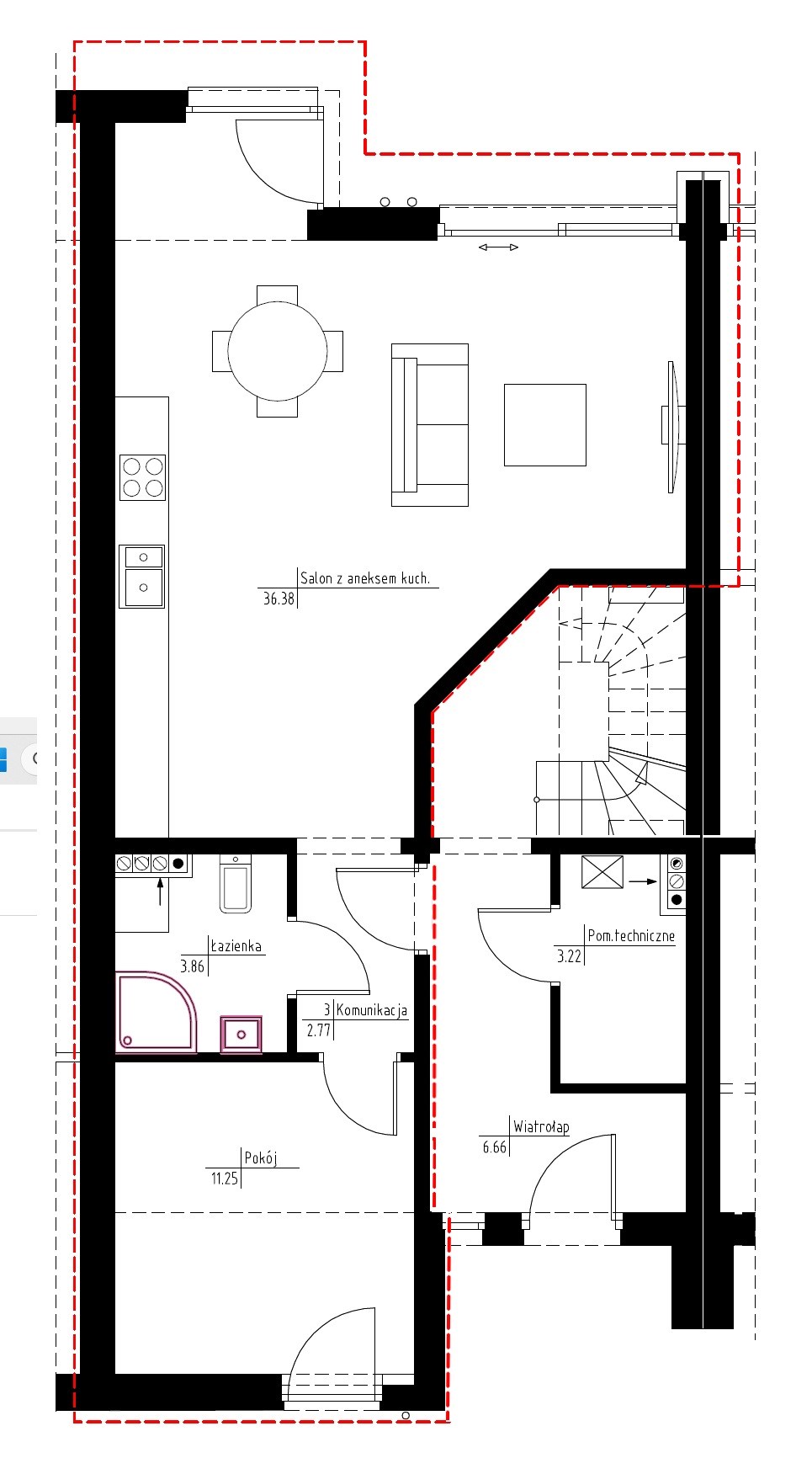
Oferuje ponadto coś, czego brakuje w standardowych blokach: dodatkową strefę wejściową i kotłownię poza metrażem mieszkania. Wiatrołap oraz kotłownia to części wspólne użytkowane tylko z jednym sąsiadem.
Wiatrołap jest na tyle przestronny, że z powodzeniem zmieścisz w nim dużą szafę na odzież wierzchnią i buty – dzięki temu nie tracisz miejsca w przedpokoju wewnątrz mieszkania!
Kotłownia znajduje się poza Twoim mieszkaniem, dzięki czemu zyskujesz więcej miejsca.
Atuty, które robią różnicę:
- Prawdziwa niezależność (bezczynszowe): Brak czynszu to oszczędność kilkuset złotych miesięcznie. Płacisz tylko za to, co faktycznie zużyjesz.
- Ogrzewanie podłogowe na całej powierzchni: Zapomnij o zimnych stopach i grzejnikach zabierających miejsce. To idealne rozwiązanie dla alergików, małych dzieci i czworonogów.
- Energooszczędność i cisza: Nowoczesne okna trzyszybowe dbają o Twój portfel i błogi spokój, skutecznie izolując od temperatury i dźwięków z zewnątrz.
- Pełna kontrola kosztów: Nowy piec gazowy dwufunkcyjny sprawia, że to Ty decydujesz, kiedy zaczyna się sezon grzewczy i ile wydajesz na ciepłą wodę.
- Bezpieczeństwo i prywatność: Zamontowane rolety zewnętrzne zapewniają intymność i dodatkową ochronę, a wideodomofon daje pewność, kto stoi pod Twoimi drzwiami, dzięki systemowi wideo-weryfikacji.
- Wysoki standard: Najtrudniejsze prace masz z głowy! Podłogi są ułożone, dekoracyjne płytki zdobią ściany, a łazienka wykończona jest w nowoczesnym stylu.
- Unikalny atut – Spiżarnia/schowek: Dodatkowe miejsce przy kuchni, którego brakuje w większości mieszkań. Idealne na zapasy, odkurzacz czy przetwory.
- Salon z aneksem kuchennym – przestrzeń 36,38 m2 z bezpośrednim wyjściem do ogródka.
- Spiżarnia/schowek – praktyczne zaplecze, które ułatwia utrzymanie porządku.
- Ustawna sypialnia – idealna pod szerokie łóżko i dużą szafę.
- Wykończona łazienka – estetyczna i funkcjonalna, z przygotowanym miejscem na pralkę.
- przedpokój – z miejscem na pojemną zabudowę.
Dla tych, którzy nie uznają kompromisów między wygodą apartamentu a swobodą własnego domu.
Jeśli chcesz mieszkać nowocześnie, bezpiecznie i tanio w utrzymaniu – to miejsce jest dla Ciebie.
Zadzwoń i umów się na prezentację. Sprawdź potencjał tego miejsca i poczuj, jak smakuje poranna kawa we własnym ogródku!
Nowoczesne mieszkanie LOFT 54,26m2 Piła | Bezczynszowe | Ul. Żeleńskiego
Opis oferty zawarty na stronie internetowej sporządzany jest na podstawie oględzin nieruchomości oraz informacji uzyskanych od właściciela, może podlegać aktualizacji i nie stanowi oferty określonej w art. 66 i następnych K.C.