Szydłowo (gw), Kotuń
Szydłowo (gw), Kotuń
KZSC-DS-5460
Opis oferty
KOTUŃ, Piła - okolice
Szukasz nowego domu w spokojnej i zielonej okolicy?
Zapraszamy do zapoznania się z ofertą osiedla domów w Kotuniu, pod Piłą.
GWARANCJA CENY DEWELOPERA!
Kupujący nie ponosi kosztów pośrednictwa.
TYLKO 6 100 zł/m2 powierzchni użytkowej!
- Osiedle składa się z 30 domów - część domów w zabudowie bliźniaczej (budynki dwu-lokalowe, czyli lokale mieszkalne z udziałem w gruncie) oraz część domów w zabudowie wolnostojącej.
- Domy są w stanie deweloperskim, co daje Ci możliwość aranżacji wnętrza według własnego gustu i potrzeb.
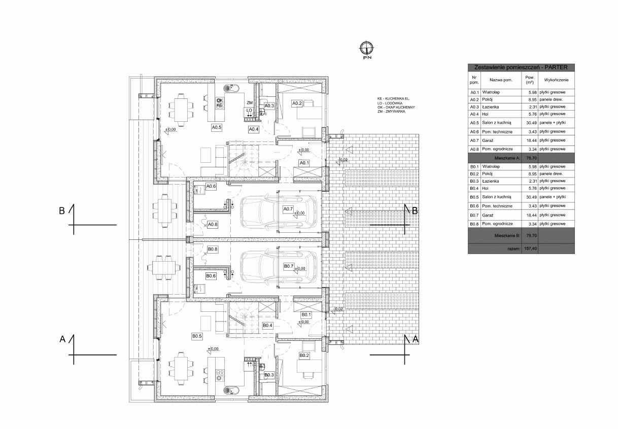
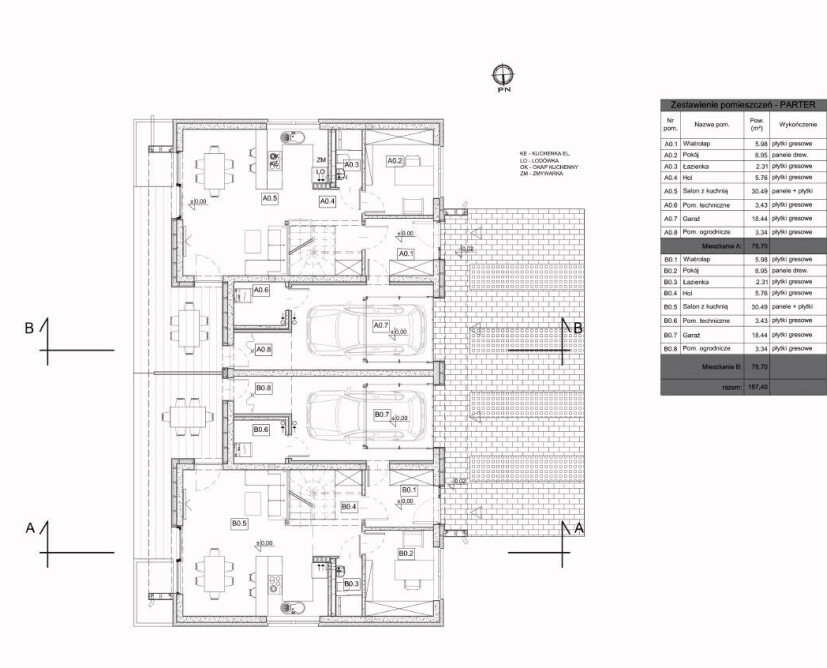
- W pierwszym etapie budujemy domy w zabudowie bliźniaczej połączonej garażami, zlokalizowane na działkach o powierzchni ok. 430 m2. Każdy z domów posiada 130,22 m2 powierzchni użytkowej. Na parterze o powierzchni 78,70 m2 znajdziemy salon z kuchnią i wyjściem na taras, pokój/gabinet, łazienkę, hol, pomieszczenie techniczne, wiatrołap oraz garaż. Piętro o powierzchni 51,52 m2 tworzą 3 sypialnie, łazienka, praktyczny schowek oraz hol. Powyżej znajduje się poddasze nieużytkowe o powierzchni 32,44 m2
- Domy są energooszczędne i wyposażone w nowoczesne instalacje, takie jak ogrzewanie podłogowe, pompa ciepła oraz zapewniające optymalną przestrzeń dla rodziny.
- Wnętrza zaprojektowane zostały z myślą o maksymalnej użyteczności i komforcie życia mieszkańców.
- Domy są położone w malowniczej okolicy, w pobliżu lasu oraz strumyka. To idealne miejsce dla osób ceniących ciszę, świeże powietrze i kontakt z naturą.
- Lokalizacja domów blisko Piły zapewnia łatwy dostęp do szkół, sklepów, usług i atrakcji kulturalnych. Dojazd do centrum miasta zajmuje około 10 minut samochodem.
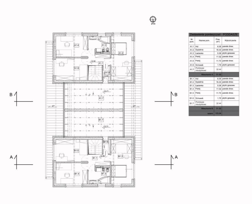
Parter (78,70 m2):
- Wiatrołap – 5,98 m2
- Pokój – 8,95 m2
- Łazienka – 2,31 m2
- Hol – 5,76 m2
- Salon z Kuchnią – 30,49 m2
- Pomieszczenie techniczne – 3,43 m2
- Garaż – 18,44 m2
- Pomieszczenie ogrodnicze – 3,34 m2
- Hol– 6,35 m2
- Sypialnia 1 – 15,33 m2
- Sypialna 2 – 11,02 m2
- Sypialnia 3 – 11,70 m2
- Schowek – 1,76 m2
- Łazienka – 5,36 m2
Domy są oferowane w stanie deweloperskim – do indywidualnego wykończenia przez przyszłego właściciela.
Do ich budowy wykorzystujemy wysokiej jakości materiały oraz nowoczesne rozwiązania technologiczne. Domy posiadają m.in. bramy garażowe sterowane na pilota, drzwi wejściowe z lustrem weneckim oraz ogrzewanie podłogowe strefowe z możliwością nastawienia indywidualnej temperatury dla każdego z pomieszczeń,
- Ściany: Silka/Ytong
- Okna: okna PCV Eco-Okna, 3 szybowe; w salonie okno przesuwne niskoprogowe w systemie Smart Slide w kolorze Antracyt
- Brama garażowa: Interflex sterowana z pilota
- Drzwi wejściowe: Martom Nordix w kolorze Antracyt z doświetleniem (lustro weneckie)
- Tynk: cienkowarstwowy silikatowo-silikonowy CAPAROL,
- Docieplenie ścian: styropian grafitowy
- Pokrycie dachu: Blacha na rąbek Budmat, system podrynnowy Galeco
- Poddasze: ocieplone wełną mineralną
- Ściany wewnętrzne: tynk maszynowy gipsowy,
- Sufity: podwieszane z płyt gipsowo kartonowych na stelażu krzyżowym
- Parapety zewnętrzne: aluminiowe powlekane
- Ogrodzenie: panelowe na podmurówce, bez ogrodzenia frontowego
- Ogrzewanie: w całym budynku ogrzewanie podłogowe strefowe, z możliwością nastawu indywidualnej temperatury dla każdego z pomieszczeń
- Źródło ciepła: pompa ciepła (Nibe lub Ariston Nimbus Flex) ze zbiornikiem emaliowanym 180 l
- instalacja oświetleniowa: gniazda elektryczne i włączniki dla części mieszkalnej wraz z osprzętem firmy Simon
- Przyłącze do sieci energetycznej,
- Przyłącze do sieci sanitarnej (ścieki, woda)
- Front budynku: podejście do drzwi wejściowych oraz podjazd do bramy garażowej z polbruku.
Twój dom na Słonecznym wzgórzu czeka na Ciebie!
Zadzwoń do nas i umów się na prezentację.
Nowe domy na sprzedaż. Osiedle deweloperskie Słoneczne wzgórza.
Zapraszamy na wirtualny spacer po nieruchomości: https://sb360.online/zpvwi5
Szczegóły oferty
Numer oferty
KZSC-DS-5460
Powierzchnia
130.22
Obszar
437.00
Stan budowy
Stan deweloperski
Rok budowy
2024
Gaz
brak
Okna
PCV
Prad
jest
Woda
tak - miejska
Garaż
w budynku
Taras
taras
Dojazd
asfalt
Otoczenie
działki zabudowane
Opis dojazdu
ostatnie kilkadziesiąt metrów drogą gruntową
Ogrzewanie
pompa ciepła
Docieplenie
Styropian
Kanalizacja
tak
Stan Budynku
do wykończenia
Pokrycie dachu
blacha
Cena za m2 pow. użytkowej
6105,0500
Kształt działki
prostokąt
Podpiwniczenie
Nie
Ogrodzenie działki
częściowo ogrodzona
Prezentacja online
Tak
Powierzchnia użytkowa
130,2200
Ukształtowanie działki
płaska
Nota prawna
Opis oferty zawarty na stronie internetowej sporządzany jest na podstawie oględzin nieruchomości oraz informacji uzyskanych od właściciela, może podlegać aktualizacji i nie stanowi oferty określonej w art. 66 i następnych K.C.
795 000 zł
6 105,05 zł/m2
Numer oferty
KZSC-DS-5460
Powierzchnia
130.22
m2
Rynek
Pierwotny